St.ULRICH/SENFTENBACH (Bez. Ried i. I.)
Wohnanlage (Einzel- und Doppelhäuser)
Highlights
- innovative Doppel-und Einzelhaushälften
- hoher Wohnkomfort
- Eigenleistungen möglich
- in 3 Ausbaustufen möglich (Rohbau, belags- & schlüsselfertig)
Beschreibung
Die Wohnanlage - nähe St. Martin im Innkreis - wird in St. Ulrich, einem Ortsteil der kleinen, beschaulichen Gem. Senftenbach im Bezirk Ried i.I. gebaut.Die Lage ist sehr verkehrsgünstig: so sind es nach St. Martin 1,5 km, zur Autobahnanschlußstelle Ort i.I. 5 km, nach Ried i.I. 12 km, Braunau 34 km und nach Passau 37 km.
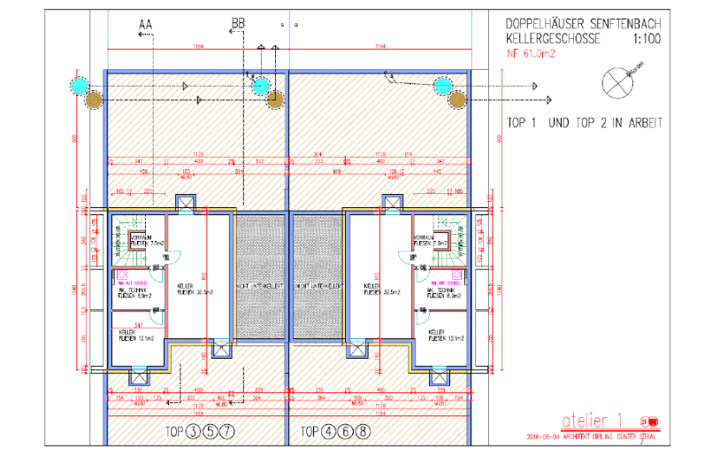
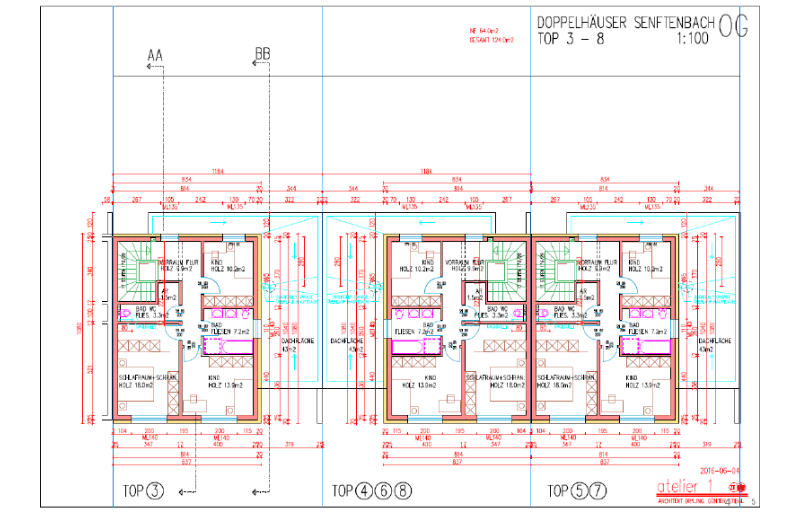
Die Wohnanlage wird als Niedrigstenergiehaus in ziegelmassiv-Ausführung gebaut. Die Wohnanlage besteht aus 8 Doppelhaushälften (Top 2-9) sowie 2 Einzelhäuser (Top 1 und 10). Es stehen verschiedene individuelle Ausbaustufen zur Verfügung - jeweils mit oder ohne Keller wählbar!
Für Vormerkung bzw. weitere Beratung stehen wir Ihnen gerne zur Verfügung – office@systemhausbau.co.at
